Detail
- Area: 177 m2
- Beds: 4
- Baths: 3
- Garages: 2
- Year built: 2024
- Reference: Berkeley - Highcroft
- Type: Country houses
- Sold: No
- Contract: Sale
- Status: Sale
- Location: United Kingdom / Oxfordshire / Wallingford
- Facade East, North, South, West
- Rooms: 5
Description
This exceptional 4-bedroom detached house in Wallingford offers refined modern living with flexible spaces for the entire family. Perfectly positioned near Wallingford’s charming town centre, this home blends contemporary design with village life.
The open-plan kitchen and family room is the heart of the home, featuring Bosch appliances, stone worktops, and bi-folding doors that seamlessly connect to the private garden. A separate living room with patio doors and an additional dining room/study offer versatile spaces for entertaining, working from home, or relaxing.
Upstairs, bedrooms 1 and 2 come with fitted wardrobes and stylish en-suites, while the contemporary four-piece family bathroom serves the remaining bedrooms. Underfloor heating on the ground floor and a gas central heating system provide year-round comfort. The home also includes a double garage and two parking spaces.
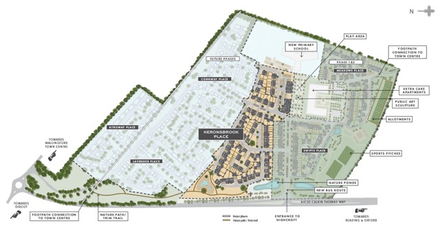
Surrounded by 34 acres of country park and with the Thames Path just a short walk away, this home offers the best of countryside serenity and excellent connections—only 15 minutes from Didcot Parkway and 38 minutes to London Paddington by train.
Enquire now to arrange a viewing and step into your dream home.
Amenities
- Air conditioning
- Aquapark
- Balcony
- Barbecue Area
- Children Park
- Closet
- Elevator
- Fitness GYM
- Furniture
- Garden
- Generator
- Jacuzzi
- Outdoor Car Park
- Sauna
- Security
- Security Camera
- Steam Room
- Swimming Pool
- Tennis Court
- Turkish Bath
- White Goods



